GŁÓWNA
PROJEKTY KOMERCYJNE
PROJEKTY MIESZKANIOWE
MEBLE
MARKI MEBLOWE
O NAS
BLOG
KONTAKT
OFERTY PRACY
MAIN
COMMERCIAL PROJECTS
RESIDENTIAL PROJECTS
FURNITURE CATALOG
FURNITURE BRANDS
ABOUT US
BLOG
CONTACTS
VACANCIES
PL
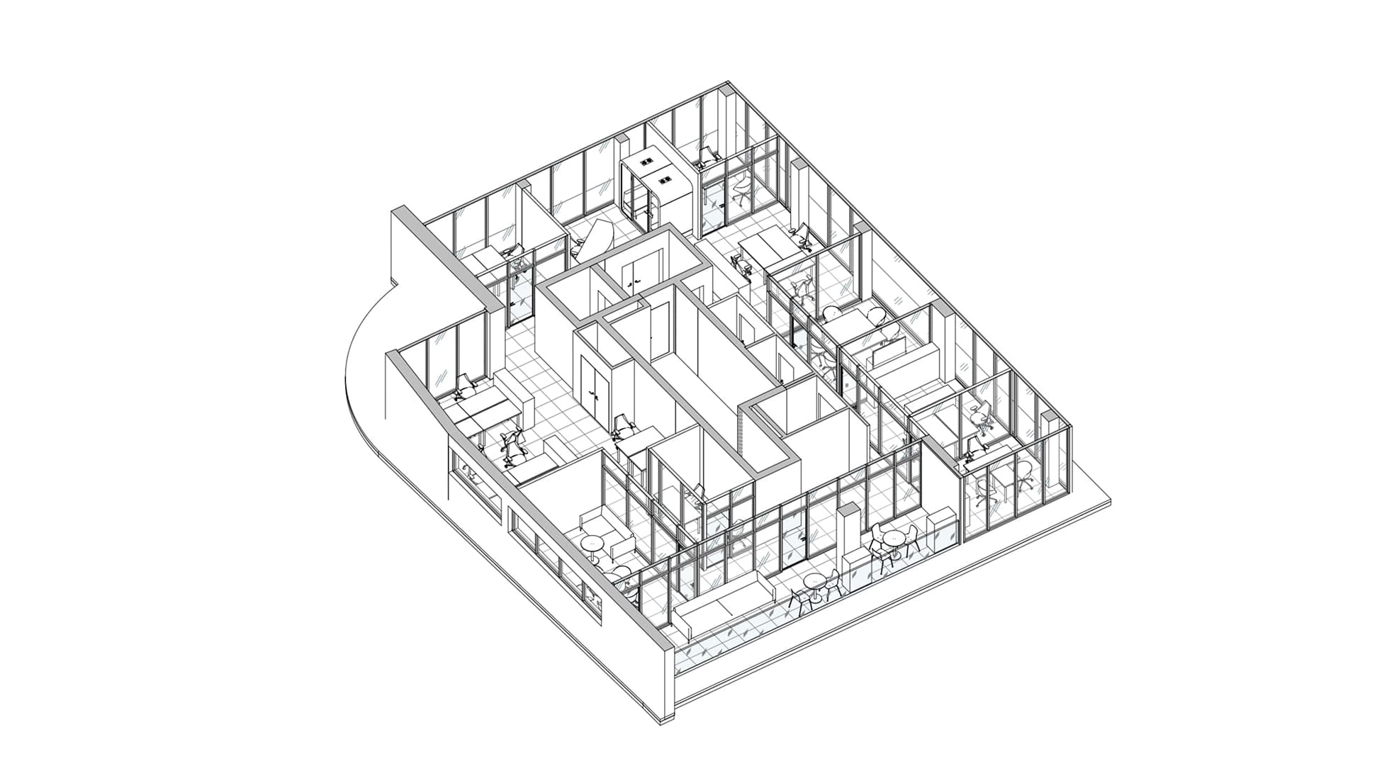
PAYTECH
190 m²
19 workstations
2025
Got a project in mind? Let's discuss it!
sEND
Privacy Policy
Commercial projects